Breed speelveld, persoonlijke aandacht

Onderstaand enkele uitgevoerde werkzaamheden, zowel in eigen beheer als in samenwerking. Benieuwd naar de mogelijkheden, neem gerust contact op!

Neem hier contact met ons op

Civieltechnisch ontwerp en werkvoorbereiding buitenruimte Aldi Uithoorn

VIAO heeft het civieltechnisch ontwerp en de werkvoorbereiding voor de inrichting van de buitenruimte rondom de Aldi Uithoorn verzorgd.

Landmeetkundige werkzaamheden wijk Rosarium te Driebergen

VIAO heeft in opdracht van de gemeente Utrechtse Heuvelrug de wijk Rosarium ingemeten zodat de geplande wijkrenovatie op basis van de juiste uitgangspunten vorm gegeven kan worden. De werkzaamheden betroffen een volledige x,y,z meting van de openbare ruimte met alle aanwezige objecten.

Civieltechnisch ontwerp binnenterrein Nijmegen

VIAO heeft het civieltechnisch ontwerp en de werkvoorbereiding voor de inrichting van een binnenterrein in Nijmegen verzorgd. Speciale aandacht is hierbij besteed aan de beperkte bereikbaarheid van het binnenterrein, de aanleg van waterberging en de aansluiting op haar omgeving.

Civieltechnisch ontwerp, werkvoorbereiding en uitvoeringsbegeleiding drive-in Griffioenlaan

VIAO heeft het civieltechnisch ontwerp voor de drive-in aan de Griffioenlaan opgesteld. Vervolgens de aanbesteding en uitvoering begeleid.

Civieltechnisch ontwerp buitenruimte woonzorgcomplex La Verna

VIAO heeft het civieltechnisch ontwerp en de werkvoorbereiding voor de inrichting van de buitenruimte rondom het woonzorgcomplex La Verna uitgewerkt op basis van het ontwerp van de landschapsarchitect.

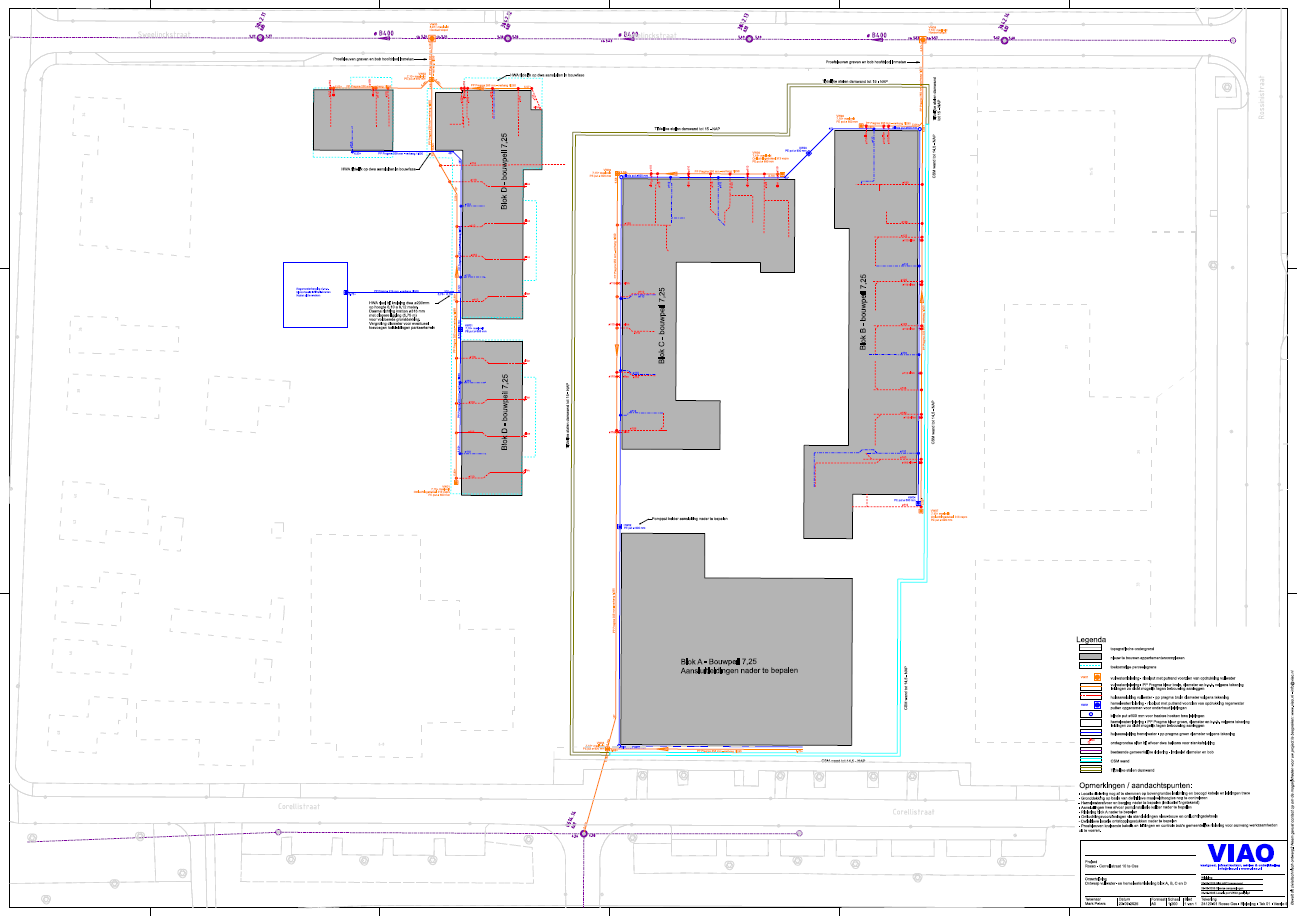
Rioleringsontwerp Rosso Oss

VIAO heeft het ontwerp voor de riolering van het nieuwbouwproject Rosso Oss opgesteld. .

Bouw- en woonrijp ontwerp Hart van De waalsprong - blok F,G,H,i en J

VIAO heeft het technische ontwerp voor de binnenterreinen van de blokken F,G,H,I en J in het project Hart van de Waalsprong te Nijmegen uitgewerkt. Hierbij is het hoogteverloop en rioleringsontwerp geoptimaliseerd voor een efficiënte en kostenvoordelige uitvoering.

Vorige
Vorige

Woningbouw Houtsestraat - sanering vrijkomende agrarische bebouwing